
Moderne duurzame schuurwoning Dalen
Eigentijdse ruime duurzame woning met weids uitzicht
Op een mooie nog te ontwikkelen locatie is deze unieke moderne schuurwoning gepland. Het ontwerp is geheel passend bij de wensen van de opdrachtgever, vrij gesloten en ingetogen naar de naastgelegen percelen en open naar de tuin met uitzicht over de landerijen.
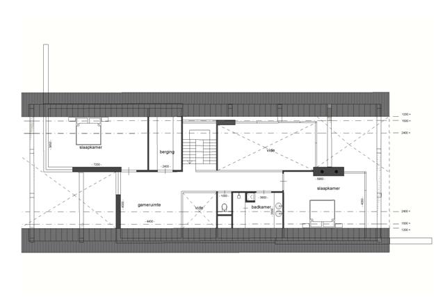
Door de leefvertrekken met vides visueel en ruimtelijk met elkaar te verbinden is er een ruimtelijke en toch intieme woning gecreƫerd. De leefruimtes zijn gericht op de tuin en het weidse uitzicht. Door de overstekken blijven de grote glaspuien in de schaduw, zodat ook in de zomer het leefklimaat in de woning aangenaam blijft.
De grote glaspuien met schuifdeuren zorgen voor verlenging van de leefruimtes naar buiten toe.
Op het dak komt een vlak met zonnepanelen, die door vorm en afmeting integreren met de leien die op het dak worden aangebracht.
In het kort: een funcionele duurzame schuurwoning die licht en ruimtelijk aanvoelt; een stijlvolle woning voor optimaal leefgenot!
opdrachtgever: particulier
status: vergunningklaar
plaats: Dalen
ontwerp: BOAHeijnen
technische uitwerking: BOAHeijnen





