
Moderne woning voor dubbele bewoning Dalen
2 onder 1 kap woning voor mantelzorg
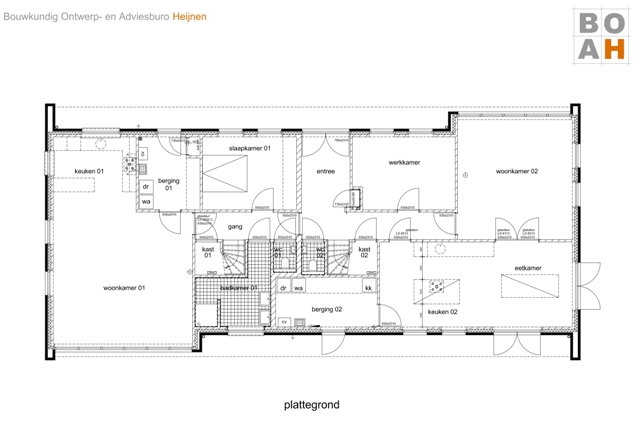
In het buitengebied van Dalen is deze woning ontworpen voor dubbele bewoning, een woning waarbij ouders met het gezin van hun kinderen in één woning wonen.
Het komt steeds vaker voor dat ouders en kinderen samen willen leven in één huis of op hetzelfde terrein. Voordeel hiervan is dat senioren langer zelfstandig thuis kunnen blijven wonen en de kinderen altijd in de buurt zijn om in te springen wanneer nodig.
Deze woning is geheel op maat ontworpen met woonruimte met bad- en slaapkamer op de begane grond voor ouders en een volledige woning voor hun kinderen en kleinkinderen op begane grond en verdieping, waarbij een eigen tuin en privacy voor beiden een uitgangspunt.
opdrachtgever: particulier
status: gerealiseerd
plaats: Dalen
ontwerp: BOAHeijnen
technische uitwerking: BOAHeijnen





